物件情報
中古戸建て・売土地八尾市高砂町5丁目
- 販売価格
- 780万円(税込)
| 所在地 | 大阪府八尾市高砂町5丁目地図 |
|---|---|
| 交通 | 近鉄大阪線「河内山本」駅 バス10分「福万寺口」徒歩4分 |
| 土地面積 | 公簿65.16㎡ |
| 建物面積 | 73.50㎡ |
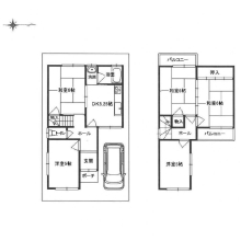
| 間取り | 5DK |
東・西側の2面バルコニー付き
写真をクリックすると拡大表示できます。
物件の詳細情報
| 駐車場 | 有 |
|---|---|
| 建蔽率・容積率 | 60%・200% |
| 地目 | 宅地 |
| 用途地域 | 第二種中高層住居専用地域、準防火地域、第2種高度地区 |
| 設備・条件 | 上水道 下水道 電気 都市ガス |
| 築年月 | 1983年11月 |
| 接道状況 | 東側:幅員約5.7m 公道 |
| 建物構造・材質 | 木造 2階建 |
| 部屋数(間取り) | 5DK |
| 引渡日 | 即時 |
| 取扱態様 | 専任媒介 |
| 周辺環境 | 八尾市立北山本小学校:徒歩10分 八尾市立桂中学校:徒歩5分 |
| 備考 | 改装箇所(2025年12月) ・フロア、クロス全面張替 ・ハウスクリーニング済み |
| 情報更新日 | 2026年2月3日 |





改装済